Tesla redéfinit encore une fois les standards en matière d’infrastructure pour véhicules électriques (VE) avec la publication de ses plans pour une station Superchargeur de 48 bornes à Fairbanks, en Alaska. Cette initiative stratégique souligne l’engagement de l’entreprise à étendre le support pour les véhicules électriques dans des zones plus froides et reculées, renforçant ainsi la confiance dans la fiabilité des VE, peu importe leur localisation.
Vue d’ensemble du Plan Superchargeur
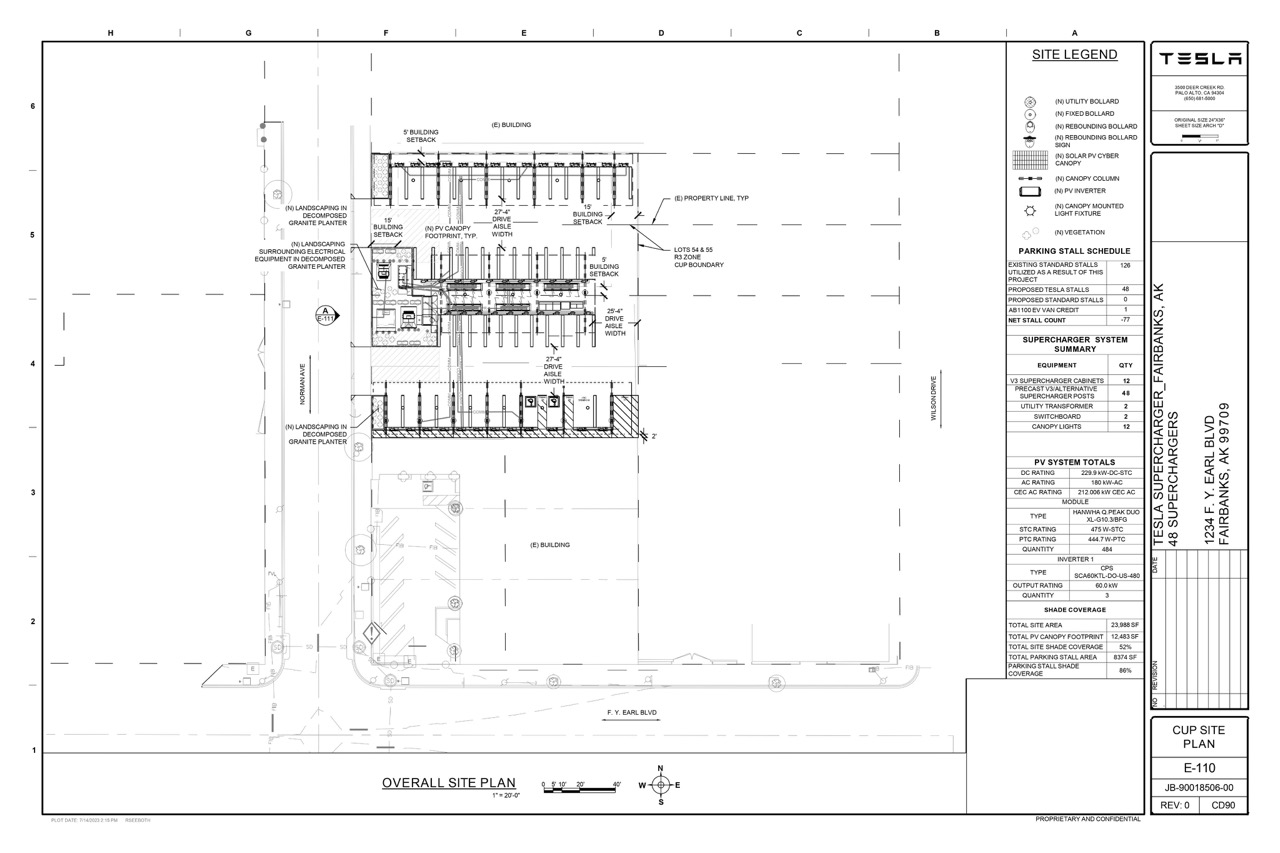
Les plans révèlent une disposition méticuleuse répondant aux besoins spécifiques des utilisateurs de véhicules électriques dans les climats nordiques. Selon les détails, la station comprendra 48 bornes de Superchargeur, un nombre considérable qui en ferait l’une des plus grandes installations de recharge Tesla au monde. Elle montre également une approche intégrée à l’énergie renouvelable grâce aux systèmes solaires photovoltaïques, confirmant l’engagement de Tesla envers la durabilité.
Caractéristiques et Détails de l’Infrastructure
Le site du Superchargeur est conçu avec le souci de la commodité de l’utilisateur et de l’harmonie environnementale. Voici quelques-unes des caractéristiques clés :
- 48 bornes de Superchargeur : Suffisamment nombreuses pour desservir un grand nombre de VE, réduisant ainsi les temps d’attente et améliorant l’accès.
- Canopée solaire : Les systèmes de canopée PV (photovoltaïques) indiqués dans le plan fourniront de l’énergie durable pour la recharge et minimiseront l’empreinte carbone de la station.
- Stockage d’Énergie : Le plan inclut des systèmes de stockage d’énergie qui assureront vraisemblablement une alimentation électrique constante et géreront efficacement la forte demande.
- Éclairage LED : Indiqué par les lumières de la canopée dans le plan, ce choix reflète l’efficacité énergétique et une réduction de la pollution lumineuse.
- Infrastructure des Services Publics : La planification détaillée des services publics suggère un support robuste pour les besoins en énergie de la station.
Importance Stratégique
Fairbanks est un choix stratégique pour plusieurs raisons :
- Terrain de Démonstration pour le Froid : En établissant une station dans l’une des villes les plus froides des États-Unis, Tesla démontre sa confiance dans la performance de ses VE dans des conditions météorologiques extrêmes.
- Tourisme et Voyage : Fairbanks est une porte d’entrée pour les touristes en quête d’aurores boréales et d’autres expériences arctiques, faisant de la station Superchargeur un arrêt essentiel pour les touristes conduisant des Tesla.
- Voyage Longue Distance : Elle sert de lien crucial pour les propriétaires de VE qui voyagent sur de longues distances à travers l’Alaska, où l’infrastructure de recharge est rare.
Impact sur le Marché des VE et la Société
L’expansion de Tesla en Alaska représente bien plus qu’une simple augmentation des stations de recharge ; elle reflète le potentiel de la technologie des VE à s’implanter dans chaque coin de la société. Ce projet pourrait bien devenir une pierre angulaire dans la défense d’une acceptation plus large de la technologie comme alternative fiable aux véhicules dépendant des combustibles fossiles traditionnels.
Conclusion
Avec ces plans, Tesla continue de démontrer son leadership non seulement dans les véhicules électriques mais aussi dans le développement d’infrastructures critiques pour la révolution des VE. La station Superchargeur de Fairbanks est destinée à être un témoignage de la vision de l’entreprise pour un avenir entièrement électrique, accessible même dans les environnements les plus difficiles.
Pour les enthousiastes, les investisseurs et les acheteurs potentiels de VE, le mouvement de Tesla vers Fairbanks est un signal fort de la croissance de l’industrie et de la viabilité croissante des véhicules électriques dans toutes les conditions.
